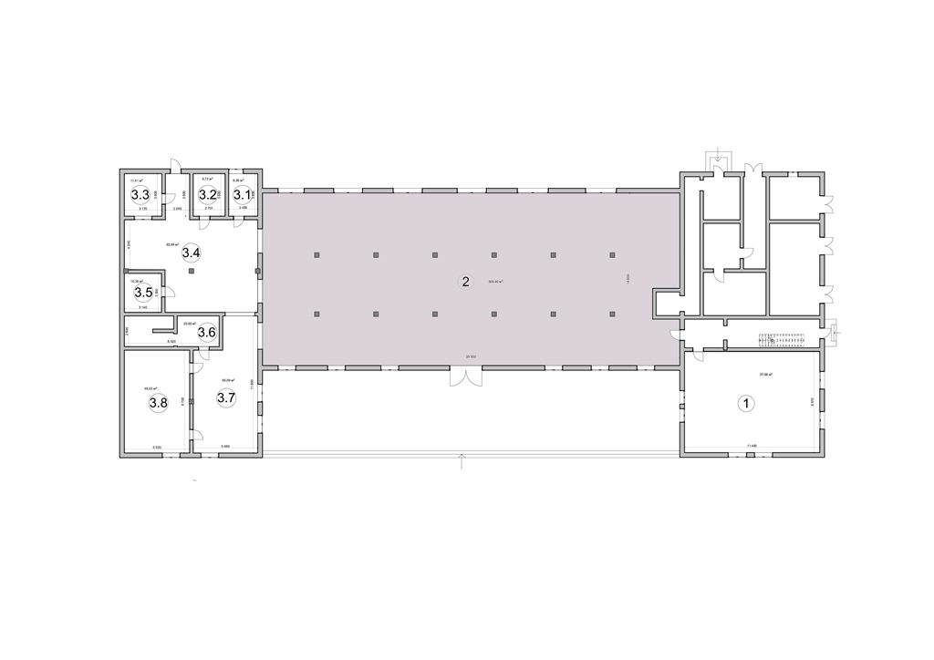
927,11 EUR
|
№ |
Характеристика |
Значення |
|
1 |
тип |
виробниче/комерційне приміщення |
|
2 |
площа (м. кв.) |
509,40 |
|
3 |
вартість оренди (EUR міс.) з ПДВ |
927,11 |
|
4 |
поверховість/поверх |
1/2 |
|
5 |
висота (м.) |
4,50 |
|
6 |
стан |
придатний до експлуатації ремонту не потребує |
|
7 |
фундамент |
бетонний стрічковий |
|
8 |
матеріали стін |
цегла/бетонні колони |
|
9 |
покрівля |
двохсхила шиферна |
|
10 |
підлога |
бетон |
|
11 |
транспортна логістика |
підїздна бетонна дорога |
|
12 |
енергозабезпечення (макс потужність), КВт |
50 |
|
13 |
безпека |
огорожена територія під охороною, відеонагляд |
|
14 |
пожежна безпека |
пожежна сигналізація, пожежний гідрант |
|
15 |
додаткові приміщення |
офіси, гардероби в суміжних приміщеннях |
|
16 |
соціальна інфраструктура на території |
туалет, медпункт , душові |
|
17 |
додаткові послуги на території |
послуги прання та їдальні |