|
№ |
Характеристика |
Значення |
|
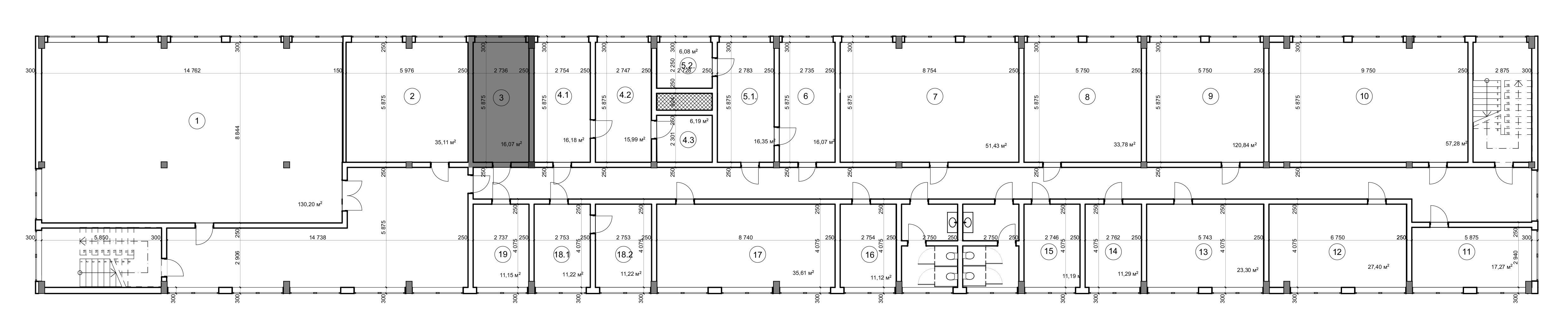
1 |
тип |
офіс |
|
2 |
площа (м. кв.) |
16,07 |
|
3 |
поверховість/поверх |
4/4 |
|
4 |
висота (м.) |
3 |
|
5 |
стан |
придатний до експлуатації, ремонту не потребує |
|
6 |
фундамент |
бетонний стрічковий |
|
7 |
матеріали стін |
залізо-бетонні панелі/цегла/ бетонні колони |
|
8 |
покрівля |
двосхила-шифер |
|
9 |
підлога |
бетон |
|
10 |
транспортна логістика |
підїздна асфальтована дорога |
|
11 |
безпека |
огорожена територія під охороною, відеонагляд |