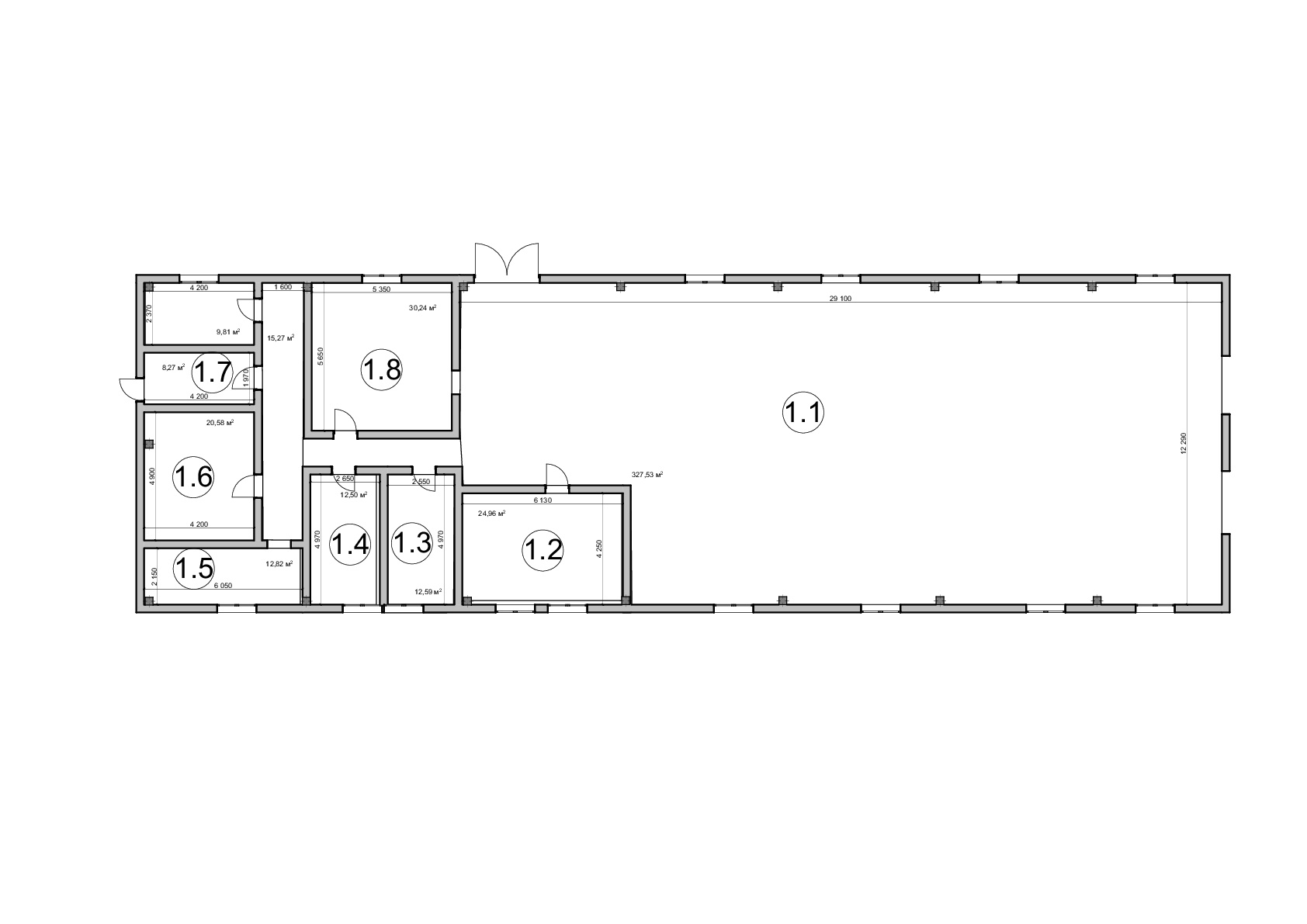
Приміщення з кран балкою / 306-1-1

 

Характеристика

Значення

тип

склад / виробниче приміщення

площа (м. кв.)

464,76

висота (м.)

5,25

поверх

 1/2

стан

придатний до експлуатації ремонту не потребує

фундамент

бетонний стрічковий

матеріали стін

цегла/ бетонні колони

покрівля

рулонна

підлога

бетон

транспортна логістика

підїздна бетонна дорога

безпека

огорожена  територія під охороною, відеонагляд

пожежна безпека

пожежна сигналізація, пожежний гідрант

додаткові приміщення

офіси, гардероби

Інші пропозиції: